LUVA Real Estate

Slične nekretnine

Pag, Povljana, 2 etažna kuća sa bazenom na prodaju, novogradnja

POVLJANA , PAG

390.000 €

Opis nekretnine

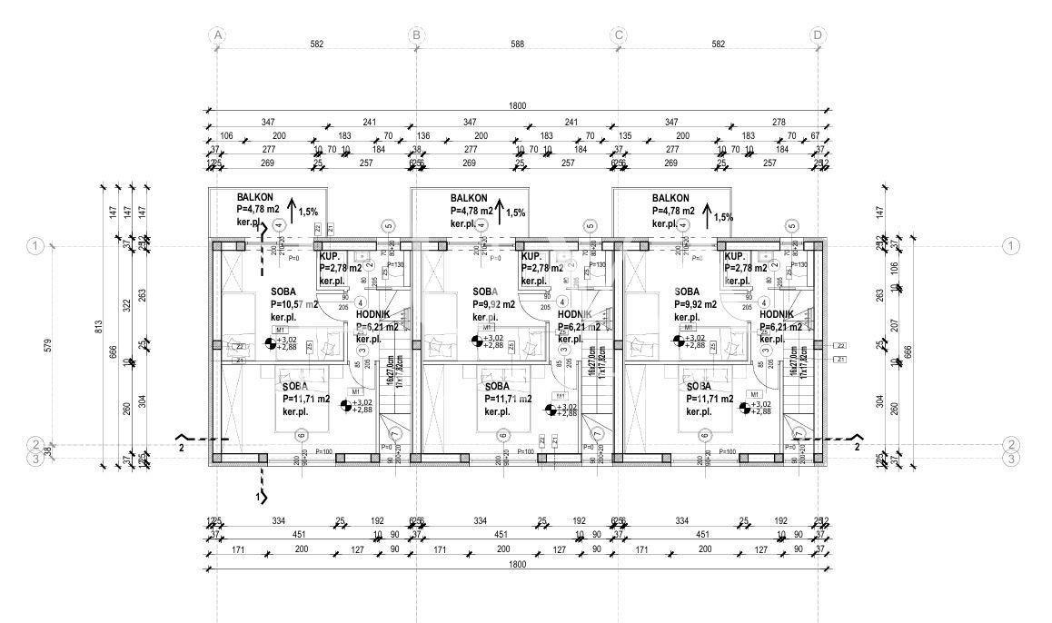
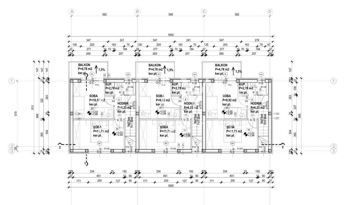
2 etažna kuća sa balkon, bazenom, velikim vrtom i 2 parkinga mjesta koja gleda na otvoreno more na prodaju Prizemlje Dnevni boravak + kuhinja 28,72 Kupaonica 3,88 Sveukupno 32,15 1 Kat Hodnik 6,21 Kupaonica 2,78 Master soba 11,71 Spavaća soba 10,57 Balkon 1,20 Sveukupno 32,47 Moderna novogradnja s bazenom i pogledom na more Na prodaju je elegantna dvoetažna kuća u novogradnji, smještena na atraktivnoj lokaciji s otvorenim pogledom na more. Ova nekretnina pruža savršen spoj suvremenog dizajna, funkcionalnog rasporeda i privatnosti, a dodatnu vrijednost donose bazen, prostrani vrt te dva osigurana parkirna mjesta. Promišljen raspored prostora U prizemlju kuće nalazi se ugodan dnevni boravak povezan s kuhinjom i blagovaonicom u otvorenom konceptu, ukupne površine 28,72 m², koji pruža obilje prirodnog svjetla i izravan kontakt s vanjskim prostorom. Na istoj etaži smještena je i kupaonica površine 3,88 m², što prizemlje čini potpuno funkcionalnim dnevnim dijelom doma. Na prvom katu organiziran je mirniji, privatni dio kuće. Hodnik površine 6,21 m² povezuje dvije spavaće sobe – glavnu spavaću sobu od 11,71 m² te dodatnu sobu od 10,57 m². Na ovoj etaži nalazi se i druga kupaonica površine 2,78 m², dok balkon od 1,20 m² pruža ugodan prostor za opuštanje uz pogled na more. Vanjski prostor i dodatne pogodnosti Kuća je okružena velikim vrtom koji pruža dovoljno prostora za boravak na otvorenom, dok privatni bazen stvara idealno mjesto za opuštanje tijekom toplijih mjeseci. Nekretnini pripadaju i dva parkirna mjesta, što dodatno povećava praktičnost svakodnevnog života ili boravka na odmoru. Ova nekretnina predstavlja izvrsnu priliku za kupnju moderne kuće uz more, bilo kao luksuznog doma za odmor ili kao investicije na jednoj od najpoželjnijih lokacija. Za sva dodatna pitanja i razgled nekretnine stojimo Vam na raspolaganju. U slučaju posla posredovanja naše agencije postoji obveza plaćanja agencijske provizije. Za ovu nekretninu je kontakt: Jasmina, +385 95 388 4813

Info

Površina zemljišta: 120 m2
Površina objekta: 64 m2
Broj soba: 3
Kupaonice: 2

Lokacija