Alma Dom - Real Estate

+

Slične nekretnine

Lijepa, moderna kuća s bazenom, Rakalj!

RAKALJ , MARČANA

650.000 €

Opis nekretnine

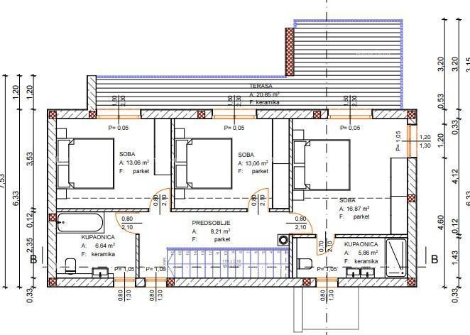
Prodajemo lijepu, modernu kuću s bazenom u neposrednoj blizini centra Raklja. Ova lijepa kuća, površine 185 m2, nalazi se samo 400 m od centra. Sastoji se od ulaza, kuhinje, blagovaonice, dnevnog boravka, 1 spavaće sobe, kupaonice i dodatne prostorije/vešeraja. Iz dnevnog boravka se izlazi na veliku terasu s ljetnom kuhinjom. Prvi kat uključuje predsoblje, tri spavaće sobe, dvije kupaonice i veliku terasu na koju imaju izlaz sve spavaće sobe. Kuća posjeduje bazen i parkirna mjesta na okućnici. Kuća će imati solarne panele, kamin, el. podno grijanje na Wi-Fi, pločice u prizemlju i parket na katu. Za dodatne informacije, molimo kontaktirajte: Azra + 385 91 611 5706 +385 98 420 885 azra@almadominvest.com

Info

Površina zemljišta: 972 m2
Površina objekta: 185 m2
Broj soba: 4
Kupaonice: 3
Kat: 1
Energetski razred: 1

Lokacija