Slične nekretnine

Prodaje se kuća prizemnica u mirnom dijelu Labina

LABIN

494.400 €

Opis nekretnine

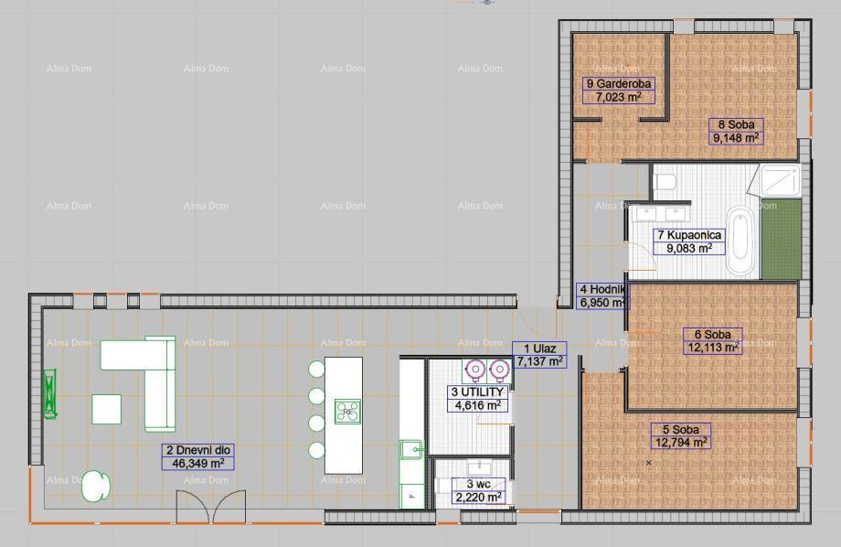
U ponudi je moderno izgrađena prizemna kuća stambene površine 143 m², smještena na izuzetno mirnoj lokaciji, a ipak nadomak starog grada Labina do kojeg se može stići i pješice. Unutrašnjost kuće koncipirana je s naglaskom na udobnost i funkcionalnost. Središnji dio čini otvoreni dnevni prostor koji povezuje kuhinju, blagovaonicu i dnevni boravak. Uz to, nekretnina raspolaže glavnom spavaćom sobom s vlastitom walk-in garderobom, još dvije dodatne sobe, dvije kupaonice te praktičnom pomoćnom prostorijom. Kod opremanja se pazilo na kvalitetu i energetsku učinkovitost – ugrađeno je podno grijanje putem dizalice topline, kvalitetna toplinska izolacija te dvije klima jedinice. Kuća ima A+ energetski certifikat. Okućnica površine 1073 m² pruža dovoljno prostora za uređenje vrta, bazena ili dodatnih sadržaja prema vlastitim željama. Idealna nekretnina za miran obiteljski život ili kao investicija za turistički najam. Udaljenost do centra iznosi svega 1 km, dok su prve plaže na manje od 5 km. Za dodatne informacije, molimo kontaktirajte: Azra +385 91 611 5706 +385 98 420 885 azra@almadominvest.com

Info

Površina zemljišta: 1073 m2
Površina objekta: 143 m2
Broj soba: 3
Kupaonice: 2
Energetski razred: 1

Lokacija