Likvidus nekretnine

+

Slične nekretnine

Luksuzna vila s bazenom, 5 km od Poreča

ANTONCI , POREČ

799.000 €

Opis nekretnine

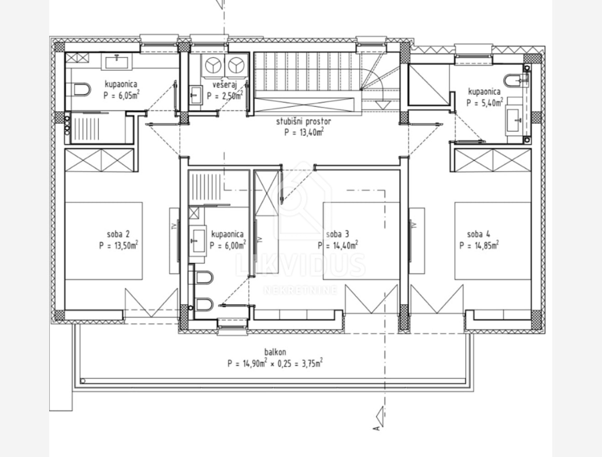
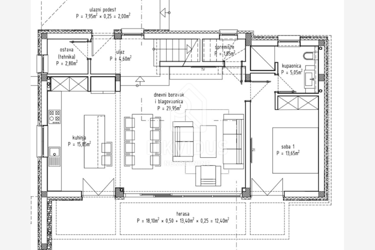
Prodaje se vila u naselju Antonci, 5 km od Poreča. Vila je ukupne površine 204 m2 bruto, 168 m2 neto, a sastoji se od prizemlja i prvog kata. U prizemlju se nalazi prostrani dnevni boravak povezan s blagovaonicom i moderno opremljenom kuhinjom, WC, jedna spavaća soba sa vlastitom kupaonicom, te tehnička prostorija (kotlovnica). Na prvom katu se nalaze dodatne tri spavaće sobe, svaka s vlastitom kupaonicom, te vešeraj. Sve sobe imaju izlaz na balkon s pogledom na bazen i prirodno okruženje, što dodatno doprinosi osjećaju luksuza i privatnosti. Okućnica je površine 592 m2. Tu se nalazi bazen od 37 m2 s integriranim jacuzzijem, kao i dodatni natkriveni jacuzzi na terasi. Vila je okružena zelenilom koje nudi idealan prostor za opuštanje, odmor ili turistički najam. Vila se vrlo uspješno iznajmljuje već šest godina zaredom. Vlasnik je voljan preuzeti posao iznajmljivanja i za budućeg vlasnika. Vila je opremljena suvremenim sustavom grijanja i hlađenja putem dizalice topline, uz podno grijanje kroz cijeli objekt. Svaka prostorija ima vlastiti termostat, što omogućuje individualnu regulaciju temperature. Na krovu je postavljena solarna elektrana od 15 kw. Energetski certifikat A+. Vila je građena kvalitetno i luksuzno. Spojena je i na kanalizaciju. Ova nekretnina predstavlja izvrsnu priliku za one koji traže luksuzan dom u Istri ili sigurnu investiciju kroz turistički najam nekretnine. Uporabna dozvola izdana je 2021. godine, jedan je vlasnik (1/1). Obzirom na urednu dokumentaciju nekretnina se može kupiti i putem kredita banke. U prikazanu cijenu uključena je agencijska provizija i sastav ugovora o kupoprodaji. Posredovanje je besplatno za kupca! Kontakt: Milena Brlek, univ.spec.iur Agentica i stečajna upraviteljica Mob: +385 99 703 1844 Mail: milena@likvidus.hr, https://likvidus.hr/ Likvidus nekretnine d.o.o., Banjole, Kamik 24

Info

Površina zemljišta: 592 m2
Površina objekta: 204 m2
Broj soba: 5
Kupaonice: 5
Energetski razred: 1

Lokacija