Naš Dom

+

Slične nekretnine

Vodice - Dvojna kuća S1 s bazenom i krovnom terasom

VODICE

550.000 €

Opis nekretnine

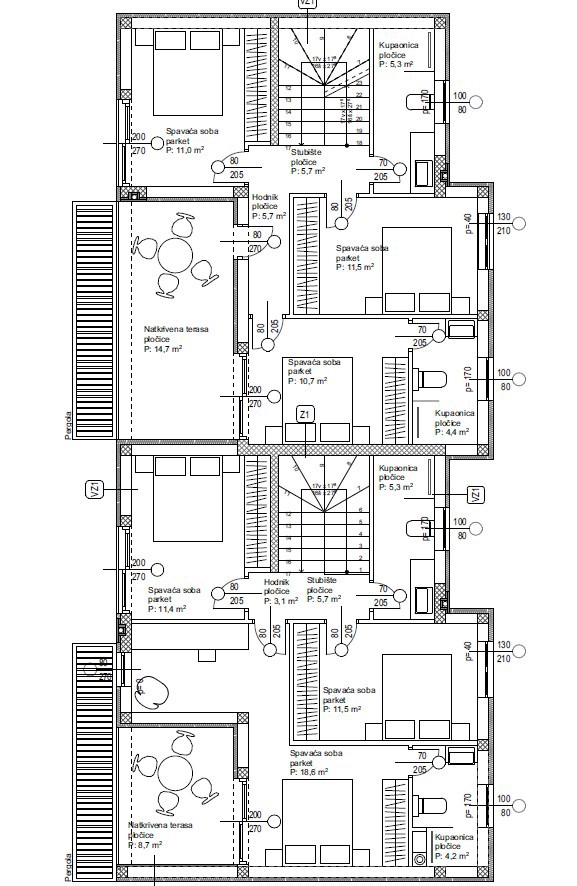
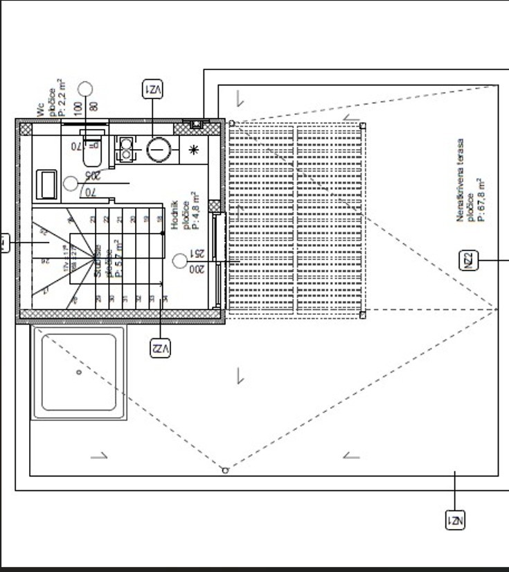
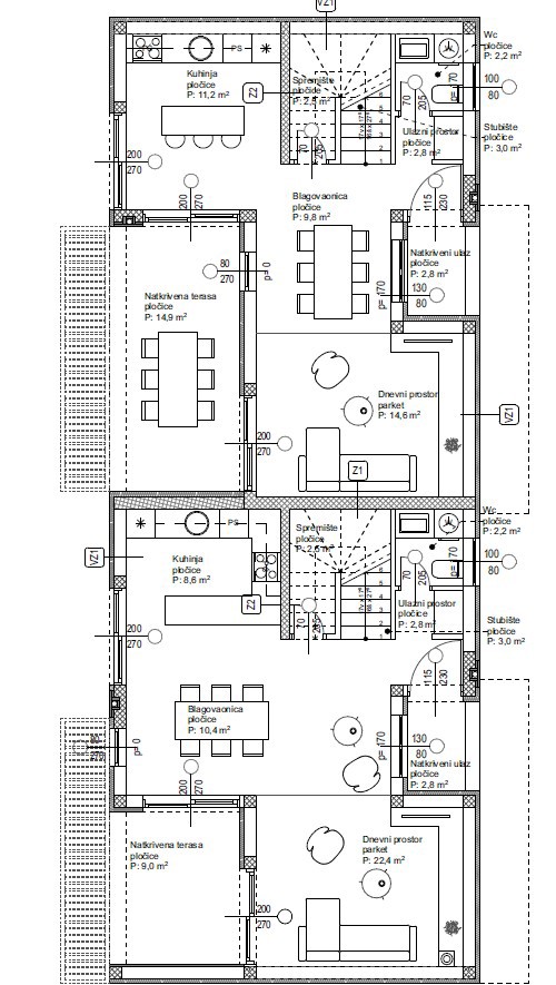
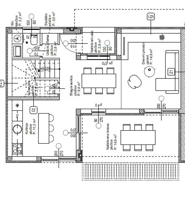
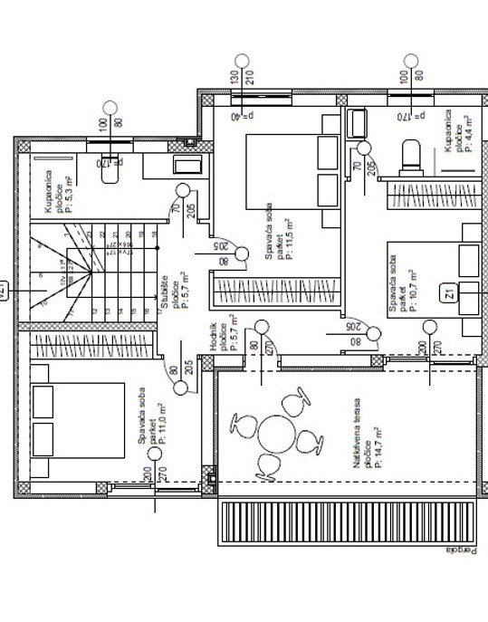
Vodice – moderna dvojna kuća S1 s bazenom na mirnoj lokaciji U ponudi je atraktivna novogradnja u Vodicama – moderna dvojna kuća koja spaja vrhunsku gradnju, funkcionalan raspored i privatnost, idealna za život ili investiciju. Smještena na mirnoj i ugodnoj lokaciji, ova nekretnina pruža savršen balans između opuštanja i blizine svih sadržaja – svega 1.300 m od plaže i 1.100 m od centra. Posebnu vrijednost ovoj nekretnini daje vlastiti bazen, prostrane terase i jugozapadna orijentacija koja osigurava obilje prirodnog svjetla tijekom cijelog dana. Kvaliteta i oprema bez kompromisa: - moderna fasada (stiropor 8 cm) za vrhunsku izolaciju - PVC stolarija s električnim roletama i komarnicima - klima uređaji u svim ključnim prostorijama - podno grijanje u dnevnom boravku i kupaonicama - privatni bazen (26,25 m2) - uređeni vrt i dva parkirna mjesta Kuća S1 – više prostora, više luksuza 186,78 m2 | 3 etaže | 550.000 € Savršen izbor za one koji žele dodatni komfor i luksuz. Prizemlje nudi otvoreni koncept kuhinje, blagovaonice i dnevnog boravka s izlazom na natkrivenu terasu – idealno za druženja i opuštanje uz bazen. Na katu se nalaze tri spavaće sobe, uključujući master sobu s vlastitom kupaonicom, dok vas na zadnjoj etaži čeka prostrana terasa od čak 67,72 m2 – savršena za lounge zonu, sunčanje ili večernja druženja s pogledom na zalazak sunca. Kuća S2 – funkcionalnost i udobnost 138,98 m2 | 2 etaže | 450.000 € Odličan izbor za obitelj ili kao investicija za turistički najam. Prizemlje je osmišljeno kao otvoreni dnevni prostor s izlazom na terasu i vrt, dok se na katu nalaze tri spavaće sobe, uključujući master sobu s vlastitom kupaonicom i garderobom. Ova nekretnina predstavlja izvrsnu priliku za sve koji traže moderan dom na mirnoj lokaciji, ali i sigurnu investiciju na atraktivnom području Vodica.

Info

Površina objekta: 186 m2
Parking: 24
Broj soba: 4
Kupaonice: 2

Lokacija