BI-LANX nekretnine - OTOK KRK

NENAD MRVOŠ; HGK licenca: 216/2009, aktivna za 2026
+

Slične nekretnine

ŠIRE PODRUČJE MALINSKE! SAMOSTOJEĆA KUĆA SA BAZENOM I POGLEDOM NA MORE! MIRNA LOKACIJA!

MALINSKA , KRK

698.000 €

Opis nekretnine

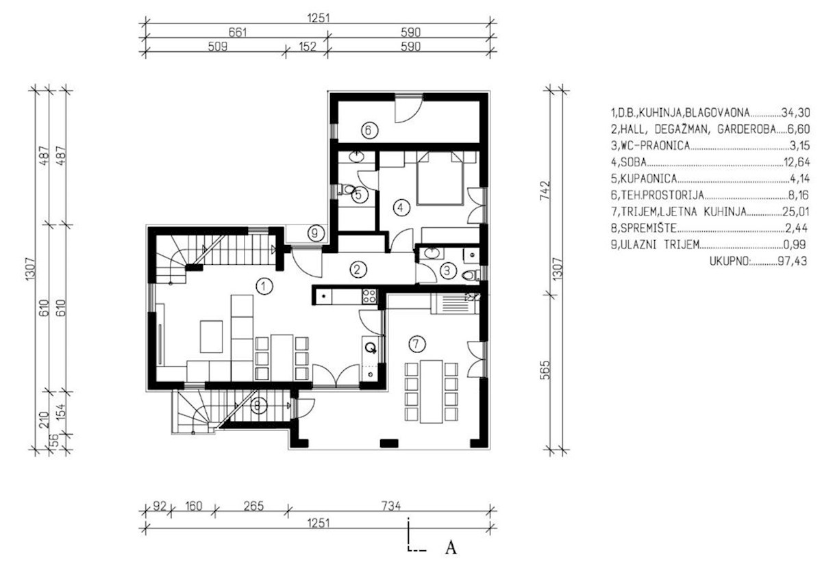
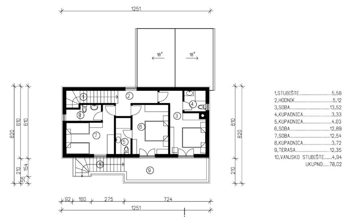
ŠIRE PODRUČJE MALINSKE -(ev.6754)- samostojeća kuća, ukupne površine 175 m2, bazen 24 m2, okućnica 590 m2, od mora 2200 m, pogled na more. Prizemlje: kuhinja s blagovaonicom i dnevnim boravkom, WC, spavaća soba sa kupaonicom, natkrivena terasa sa roštiljem + ostava. Prvi kat: 3 spavaće sobe sa 3 kupaonice, balkon. Klimatizirano, električno podno grijanje, SAT TV, PVC stolarija, kvalitetna keramika. 4 parkirna mjesta. UPORABNA DOZVOLA. PDV u cijeni. Mirna lokacija.

Info

Površina zemljišta: 590 m2
Površina objekta: 175 m2
Parking: 60
Broj soba: 4
Kupaonice: 5

Lokacija