Dogma nekretnine d.o.o.

+

Slične nekretnine

BRODARICA - Šibenik - prekrasna kuća uz more - top lokacija

BRODARICA , ŠIBENIK

850.000 €

Opis nekretnine

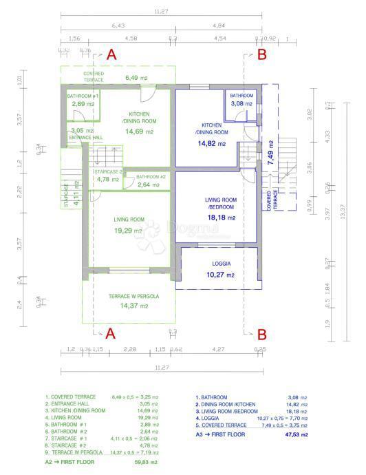
Elegantna samostojeća kuća uz more – Brodarica, Šibenik Prodaje se elegantna samostojeća kuća na jedinstvenoj lokaciji u blizini mora, smještena u mirnoj Brodarici, poznatoj po kristalno čistom Jadranu, uređenim plažama i izvrsnoj prometnoj povezanosti s gradom Šibenikom i okolicom. Glavne karakteristike Ova prostrana vila raspoređena je na tri etaže – prizemlje, dva kata i potkrovlje – ukupne izgrađene površine 297 m² (neto 245 m²) na parceli od 360 m². Ukupna korisna površina s vrtom i parkirnim mjestima iznosi impresivnih 465 m² (neto 272 m²). Glavno pročelje kuće orijentirano je prema jugozapadu, s prekrasnim pogledom na more. Kuća se sastoji od četiri potpuno odvojene, moderno opremljene stambene jedinice, idealne za ugodan obiteljski život ili turistički najam. Svaka jedinica ima zaseban ulaz i vlastiti vanjski prostor: prostrane terase, lođe s pogledom na more ili mirne kutke za uživanje u privatnosti. Pametno osmišljena organizacija prostora Glavni apartman proteže se kroz tri etaže, s prostranom terasom i bioklimatskom pergolom za cjelogodišnje korištenje. Ostali apartmani raspoređeni su po etažama, svaki s loggiama i terasama koje spajaju privatnost i pogled na more. Kvalitetna gradnja i oprema Kuća je građena od kvalitetnih materijala i opremljena vrhunskom opremom, a 2020. godine potpuno je renovirana: novi krov, termoizolacijska fasada (StoTherm Vario), kvalitetna PVC i aluminijska stolarija. Svi apartmani opremljeni su Danfoss električnim podnim grijanjem, infra grijanjem Redwell, klimatizacijom te Buderus solarnim grijanjem vode s Viessmann Vitocell spremnikom. Kupaonice i kuhinje uređene su keramikom Marazzi, sanitarnom opremom Ceramica Flaminia, Geberit, TECE i slavinama Hansgrohe i Gessi. Energetska učinkovitost i suvremena tehnologija Kuća ima dualnu solarnu elektranu (16 kWh) s dva Fronius invertera, vrhunsku elektro zaštitu Schneider Electric i vlastitu EV punionicu Wallbox Evlink (22 kW). Trofazni priključak, dvosmjerno brojilo i daljinsko očitanje dodatno smanjuju troškove. Okućnica i vanjski prostor Dvorište je popločano Bradstone Old Town opločnicima u prirodnom bijelom tonu. Automatizirani Rain Bird sustav navodnjavanja brine za zelenilo koje se savršeno uklapa u mediteranski ambijent — idealno za vrt ili lounge zonu. Garaža s Hörmann Premium Plus vratima na daljinsko upravljanje pruža sigurnost i praktičnost, dok konoba u dvorištu nudi dodatni prostor za spremanje, vinoteku ili ljetnu kuhinju. Sigurnost i praktičnost Garažna vrata otvaraju se putem Bluetootha ili daljinskog upravljača, vanjska rasvjeta je vrhunske kvalitete. Pametna investicija Ova kuća pruža savršen spoj elegantnog obiteljskog života i potencijala za turistički najam — sve stambene jedinice su potpuno odvojene, potražnja za kvalitetnim smještajem je visoka, a održavanje minimalno zahvaljujući energetskoj samodostatnosti. Spremna za useljenje Nekretnina koja spaja eleganciju, održivost i funkcionalnost na jednoj od najatraktivnijih lokacija uz Jadran. Idealna kao obiteljski dom, vikend vila ili vrhunski objekt za turistički najam. Kontaktirajte nas i osigurajte svoj elegantni kutak uz more Draženka Blazinarić +385 91 796 2322

Info

Površina zemljišta: 199 m2
Površina objekta: 297 m2
Parking: 1
Broj soba: 10
Kupaonice: 10

Lokacija