DUX Nekretnine

+

Slične nekretnine

ISTRA, ROVINJ - Kuća modernog dizajna s bazenom

ROVINJSKO SELO , ROVINJ

900.000 €

Opis nekretnine

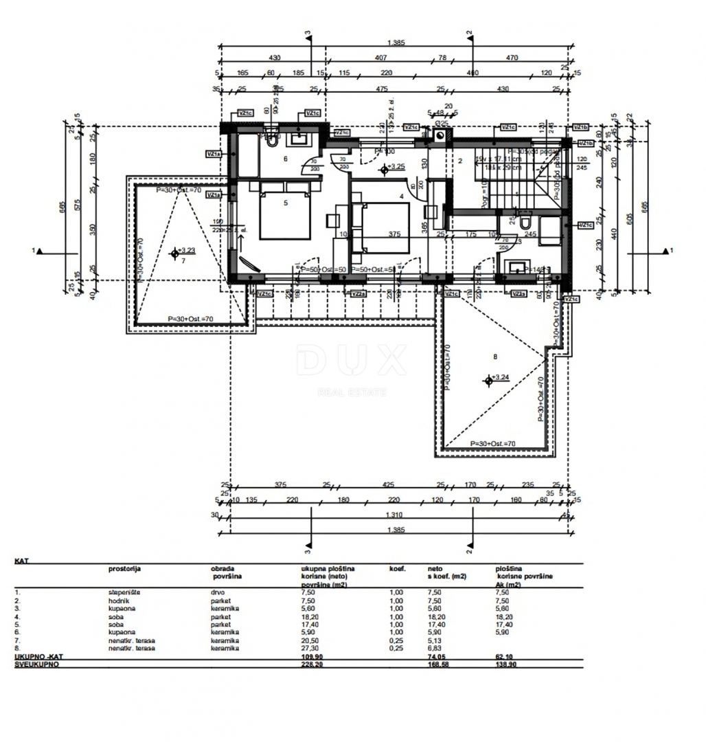
ISTRA, ROVINJ - Kuća modernog dizajna s bazenom Najatraktivniji pitoreskni istarski grad Rovinj, sa starogradskom jezgrom pod UNESCO-ovom zaštitom, vječna je inspiracija romantičara i umjetnika i jedna od najrazvijenijih turističkih destinacija u Hrvatskoj. Smješten je na zapadnoj obali Istre i krasi ga izrazito razveden arhipelag sa čak 14 otočića i 6 hridi duž 67 kilometara priobalja koje je zaštićena prirodna baština. Prekrasna razvedena obala, specifična blaga mediteranska mikroklima, izvrsna gastronomska ponuda, cjelogodišnja kulturna događanja i simpatični i ljubazni domaćini čine ovo mjestašce čarobnim. Nedaleko grada Rovinja, na prodaju je kuća modernog dizajna s bazenom. Mikrolokacija nudi autentičan doživljaj malog istarskog mjesta, intimnost, rasterećenost od svakog užurbanog napora i odmor od buke a ujedno dovoljno blizu dinamičnih gradova Istre s nizom sadržaja. Osim pogodne lokacije, nekretninu odlikuje i kvaliteta gradnje što jamči dugoročno zadovoljstvo i kvalitetu stanovanja. Kuća se svojom arhitekturom oblikovno i koloristički uklopa u naselje i krajolik te stvara sinergiju prirodnog okruženja i modernog dizajna. Definirana je kao jedna stambena jedinica čija je površina raspoređena kroz dvije etaže funkcionalnog tlocrta. Prizemlje se sastoji od prostora otvorenog koncepta koji ujedinjuje kuhinju, blagovaonicu i dnevni boravak s izlazom na natkrivenu terasu koja sadrži ljetnu kuhinju, spavaće sobe, kupaonice i ostave. Kat se sastoji od dvije spavaće sobe s vlastitim kupaonicama i vlastitim terasama. Okućnica je uređena i ograđena a savršen sklad nadopunjuje grijani bazen površine 41 m² sa sunčalištem, vanjska sauna i hidromasažna kada. Odlična lokacija te prostorna organizacija interijera i eksterijera ove nekretnine pruža priliku za komforan obiteljski život ili investicijsko ulaganje u turistički posao u iznajmljivanju. Prodavatelj predmetne nekretnine je pravna osoba te u navedenu cijenu nije uključen PDV. Poštovani klijenti, agencijska provizija naplaćuje se u skladu s Općim uvjetima poslovanja: www.dux-nekretnine.hr/opci-uvjeti-poslovanja

Info

Površina zemljišta: 751 m2
Površina objekta: 228 m2
Broj soba: 4
Kupaonice: 3

Lokacija